NORTEK PPA3RFX-K SERIES Air Conditioner

IMPORTANT SAFETY INFORMATION
- Before servicing, disconnect all electrical power to the indoor blower.
- When servicing controls, label all wires before disconnecting. Reconnect wires correctly.
- Verify proper operation after servicing.
- The installer must comply with all local codes and regulations that govern the installation of this type of equipment. Local codes and regulations take precedence over any recommendations contained in these instructions.
- Consult local building codes and the National Electrical Code (ANSI CI) for special installation requirements.
- Use caution when handling this appliance or removing components.
- Personal injury can occur from sharp metal edges present in all sheet metal-constructed equipment.
- Follow all precautions in the literature, on tags, and on labels provided with the equipment.
- Read and thoroughly understand the instructions provided with the equipment prior to performing the installation and operational checkout of the equipment.
- The installer should become familiar with the unit’s wiring diagram before making any electrical connections to the unit.
Before You Install this Unit
- Check the electrical supply and verify that the power supply is adequate for unit operation. If there is any question concerning the power supply, contact the local power company.
- Please consult your dealer for maintenance information and the availability of maintenance contracts. Please read all instructions before installing the unit.
Locating the Air Conditioner
- Survey the job site to determine the best location for mounting the outdoor unit.
- Select a solid, level position, preferably on a concrete slab, slightly above the grade level, and parallel to the home.
- If possible, select a site for the unit that is as close as possible to the proposed return grille location.
- The unit should be located with consideration of minimizing the length of the supply and return ducts.
Service Access Clearance
- Blower and electrical control access panels …………..24”
- Clearance between overhang and top of unit …….. 72”
- Clearance around condenser coil area to wall or shrubs (excludes duct panel side) ………………………..12”
Clearances to Combustible Materials
- Supply and return air ducts …………………………………0”
- Duct connection side ………………………………………….0”
Air Duct System
Air ducts must be installed in accordance with the standards of the National Fire Protection Association “Standard for Installation of Air Conditioning and Ventilation Systems” (NFPA 90A), “Standard for Installation of Residence Type Warm Air Heating and Air Conditioning Systems” (NFPA 90B), these instructions, and all applicable codes. NFPA publications are available by writing to: National Fire Protection Association, Batterymarch Park, Quincy, MA 02269, or by visiting www.NFPA.org on the web.


- Design the ductwork according to the methods described by the Air Conditioning Contractors of America (ACCA).
- The supply duct system, including the number and type of registers, will have much more effect on the performance of the system than any other factor. The duct must be sufficiently large to conduct an adequate amount of air to each register. See Figure 2.
- Ductwork should be attached directly to the unit flanges for horizontal applications.
- For highly resistive duct systems, it may be necessary to add a return air duct and or supply to achieve maximum performance and prevent coil icing and refrigerant flood back.
- The air conditioning output of the system will not cool the home if air is lost to the outside through leaks in the duct system. Ducts that are collapsed or restricted by foreign objects will also prevent adequate air flow.
- All ductwork passing through unconditioned space must be properly insulated to minimize duct losses and prevent condensation. Use insulation with an outer vapor barrier. Refer to local codes for insulation material requirements.
Installation
Unpacking the Unit
It is recommended that the unit be unpacked at the installation site to minimize damage due to handling.
- Remove the bands from around the unit.
- Unfold the top and bottom cap flanges.
- Carefully remove the top cap and tube.
Installing Return & Supply Air Collars
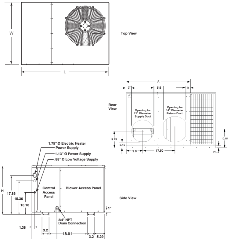
If the supply and return collars are supplied with the unit, they will be located in the supply duct. They can be easily positioned over the unit openings and secured with sheet metal screws. See Figure 3.
- The diameter of the return duct collar is 14”.
- The diameter of the supply duct collar is 12”.
- Before permanently installing the collars, it is recommended that you pre-fit them over the openings first to determine the best fit and alignment.
Supply Duct
- Position the supply duct collar so the edge of the unit opening fits between the flange and the bead.
- Overlap the collar ends, keeping the small screw holes underneath.
- Align the holes in the crimped area and install one screw. NOTE: It may be necessary to loosen the four screws that hold the transition duct to install the supply fitting. Re-tighten when installation is complete.
- Tap the collar (if necessary) to ensure engagement with the unit opening and install the second screw.
- Tighten the first screw and rotate the collar clockwise so the joint is near the three o’clock position.
Return Duct
- Assemble the collar by overlapping the two ends. NOTE: One end of the collar is slotted, and the opposite end has two small holes. Position the end with small screw holes underneath the slotted end.
- Fasten the collar ends with self-drilling sheet metal screws.
- Position the collar over the unit opening. Align the four holes in the collar with the four dimples or holes (depending on the unit model) in the panel.
- Secure the collar to the rear panel using self-drilling screws (10-16x.5).
Connecting the Return & Supply Air Flexible Ducts
- Flexible ducts may be cut to the required length and spliced with sheet metal sleeves and clamps. Keep all ducts as short and straight as possible. Avoid sharp bends.
- Ducts may be spliced with sheet metal sleeves and clamps.
- After the inner duct is connected to the proper fitting, the insulation and plastic sleeve should be pulled over the connection and clamped.

- Homes with multiple supply ducts (or special applications), a Y fitting is available to divide the supply air so it can be ducted to different areas of the home for more efficient cooling. NOTE: For maximum performance, insulate the Y fitting.
Locating & Installing the Return Air Assembly
- Start the installation from under the home by cutting a small hole in the subfloor.
- Determine how the floor joist location will affect cutting the opening needed for the return air box.
- After measuring the return air box (approximately 12-1/4” x 20-1/4”), cut the hole through the floor so that the box will fit between the floor joists.
- Care should be taken when cutting through carpeting to avoid snags.
- Set the box into the opening, fasten it with screws or nails.
- Install the filter and return air grille in the air box.

Locating & Installing the Supply Damper(s)
- Locate the center of the heat duct by cutting a small hole in the fiberboard below the duct at the desired location.
- Cut a hole approximately 3/4” larger than the damper opening in the fiberboard.
- Cut a 9-1/8” x 13-1/8” hole in the duct and bend over all tabs flat on the inside of the heat duct.
- Insert the damper into the duct and bend over all tabs flat on the inside of the heat duct.
- Seal the opening between the fiberboard and the amper or flexible duct.
Condensate Drainage
- Thread the elbow provided with the unit into the drain connection until hand-tight.
- Connect the condensate tubing to the fitting, forming a trap near the drain connection.
- Route the condensate tube from the trap to a suitable drain.


Electrical Connections
- Before servicing, disconnect all electrical power to the indoor blower.
- When servicing controls, label all wires before disconnecting. Reconnect wires correctly.
- Verify proper operation after servicing.
- All electrical connections must be in compliance with all applicable local codes and ordinances, and with the current revision of the National Electric Code (ANSI/NFPA 70).
- For Canadian installation, the electrical connections and grounding shall comply with the current Canadian Electrical Code (CSA C22.1 and/or local codes).
Pre-Electrical Checklist
- Verify that the voltage, frequency, and phase of the supply source match the specifications on the unit rating plate.
- Verify that the service provided by the utility is sufficient to handle the additional load imposed by this equipment. Refer to the unit wiring label for proper high and low voltage wiring.
- Verify factory wiring is in accordance with the unit wiring diagrams: Figure 14 (page 14), Figure 15 (page 15), or Figure 16 (page 16). Inspect for loose connections.
Line Voltage
- A wiring diagram is located on the inside cover of the electrical box of the unit. The installer should become familiar with the wiring diagram before making any electrical connections to the unit.
- An electrical disconnect must be located within sight of and readily accessible to the unit. This switch shall be capable of electrically de-energizing the unit.


- The unit requires both power and control circuit electrical connections. Refer to the wiring diagram for the identification and location of unit field wiring interfaces. Make all electrical connections in accordance with all applicable codes and ordinances. Figure 14, Figure 15, or Figure 16.
- Overcurrent protection must be provided at the branch circuit distribution panel and sized as shown on the unit rating label and according to applicable local codes. See the unit rating plate for minimum circuit ampacity and maximum overcurrent protection limits.
- 208/230 Volt units are shipped from the factory wired for 230 volt operation. For 208V operation, remove the lead from the transformer terminal marked 240V and connect it to the terminal marked 208V.
Grounding
This unit must be electrically grounded in accordance with local codes or, in the absence of local codes, with the National Electrical Code (ANSI/NFPA 70) or CSA C22.1 Electrical Code. Ground the air conditioning unit using the green grounding screw provided in the control panel.
Overcurrent Protection
Generally, the best fuse or breaker for any air conditioner is the smallest size that will permit the equipment to run under normal usage and provide maximum equipment protection. Properly sized fuses and breakers also prevent nuisance trips during unit startup. If a fuse blows or a breaker trips, always determine the reason. Do not arbitrarily install a larger fuse or breaker, and do not, in any case, exceed the maximum size listed on the data label of the unit.
Thermostat / Low Voltage Connections
- The control circuit wiring must comply with the current provisions of the NEC (ANSI/NFPA 70) and with applicable local codes having jurisdiction.
- Route 24V control wires through the sealing grommet near the power entrance.
- Select a thermostat that operates in conjunction with the installed accessories.
- Refer to the thermostat manufacturer’s instruction sheet for detailed mounting information.
Heat / Cool Thermostat
Install a thermostat that operates in conjunction with the installed accessories. See Figure 13 (page 13) for the Heat / Cool application.s

Connect the optional outdoor thermostat between the W1 (BROWN) connection and the ORANGE wire in the outdoor unit. See Figure 13. Refer to the installation Instructions supplied with the outdoor thermostat for setup details.
Cooling Mode
- On a call for cooling, the thermostat closes and applies 24VAC to the G & Y1 terminals of the control. The compressor contactor closes and operates the compressor in 1st stage.
Blower Speed
- Disconnect all electrical power to the unit and remove the service panel.
- Locate the RED, BLUE, and ORANGE wires terminated to the blower motor. The RED wire controls the low-speed cooling and heating operations, the BLUE wire controls high-speed cooling and heating operations, and the ORANGE wire controls the electric heating operation.
- Verify the required speed from the airflow data found in Table 3 (page 7). Place the appropriate wire on the appropriate motor speed tap for the required airflow.
Adjustment
- Verify the unit is level and allows proper condensate drainage.
- Verify the outdoor coil and top of the unit are free from NORTEK PPA3RFX-K SERIES Air Conditioner obstructions and debris, and all equipment access/control panels are in place.
- Check the condenser fan to make sure it turns freely.
Start-Up Procedure
- Set the system mode to OFF and the temperature mode to its highest setting.
- Turn the power on at the disconnect switch.
- Set the system mode to ON or COOL.
- Set the temperature mode below room temperature.
- Verify the ductwork has no air leaks.
- Set the temperature mode above room temperature. The unit should stop.
- Instruct the homeowner on unit and thermostat operation and filter servicing.
Air Circulation
Leave the thermostat system mode on OFF, and set the fan mode to ON. The blower should run continuously. Check the air delivery at the supply registers and adjust register openings for balanced air distribution. If air is insufficient, examine the ductwork for leaks or obstructions. Set NORTEK PPA3RFX-K SERIES Air Conditioner the thermostat fan mode to AUTO. The blower should stop running.
System Cooling
Change the thermostat’s system mode to COOL and the fan mode to AUTO. Set the thermostat temperature selector below the existing room temperature. Allow the cooling system to operate for several minutes and check for the discharge of cool air at the supply registers.
System Heating
- Set the thermostat’s system mode to HEAT and the fan mode to either AUTO (intermittent air) or to ON (continuous air).
- Set the thermostat’s temperature selector above the existing room temperature:
- Allow the system to operate for several minutes and check the supply registers for warm air.
- Verify the outdoor AC compressor and fan are NORTEK PPA3RFX-K SERIES Air Conditioner not running.
Functions
High-Pressure Switch (HPS) – A high-pressure switch is factory-installed and located in the liquid line internal to the unit. The switch is designed to protect the system when very high pressures occur during abnormal conditions. Under normal conditions, the switch is closed. If the liquid pressure rises above 650 psig, the switch will open and de-energize the unit. The NORTEK PPA3RFX-K SERIES Air Conditioner switch will close again when the liquid pressure decreases to 460 psig.
Low-Pressure Switch (LPS) – A low-pressure switch is factory-installed and located in the suction line internal to the unit. The switch is designed to protect the compressor from a loss of charge. Under normal conditions, the switch is closed. If the suction pressure falls below 5 psig, the switch will open and deenergize the unit. The switch will close again when the suction pressure increases above 20 psig.


Wiring Diagram




Installation Checklist



Replacement Parts
- Capacitors
- Compressors
- Contactors
- Pressure Switches
- RelaysTemperature
- Limit Switches
- Thermostats
- Time Delay Relays
- Transformers
- Blower Motor
- Fan Motor
- Blower Assembly
- Cabinet Panels
- Expansion Valves
- Fan Grille
- Filter/Driers
FAQs
How do I operate the thermostat and control settings?
Use the included remote control or the unit’s control panel to set your desired temperature, fan speed, and mode (cool, fan-only, dry). The thermostat will maintain the set temperature automatically.
How often should I clean or replace the air filter?
Clean the reusable air filter every 30 days for best results, or more often if you live in a dusty area. Change the disposable filters as the handbook instructs.
Does the unit have a built-in dehumidifier function?
Yes, there is a dry mode on the PPA3RFX-K Series that lowers humidity without sacrificing acceptable temperatures.
Why is my air conditioner making unusual noises?
The unit settling after installation, loose parts, or debris in the fan are common culprits. Turn off the unit and speak with a service expert if the noises continue.
How do I reset the air conditioner?
Turn off the device and disconnect it for approximately five minutes to reset it. Replug it and turn it on. Consult the manual’s troubleshooting section if issues persist.
What is the recommended room size for this model?
The BTU capacity of the PPA3RFX-K Series devices varies. For effective cooling, make sure the model’s specifications fit the size of your room.

