Dometic DTM04 Tank Monitor Systems
Safety Instructions
When using this device, always exercise basic safety precautions, including the following:
- Read all instructions before installation or use.
- Never connect this device to any electrical circuit with anything other than 12 or 24 volt Direct Current, or exceed the amperage draw listed below.
- Never install the indicator panel in an atmosphere with potentially flammable or explosive vapors.
- Never install the probe cap with float switches into a tank that contains anything other than fresh, gray, or black water.
Features
Tank Monitor Systems
- Dometic Tank Monitor Systems permit remote sensing of liquid levels in black or gray wastewater, or potable freshwater tanks.
- Three float switches, which activate a set of four lights, are installed in the desired tank.
- One float activates a “Full” light when the liquid is within 2 inches (51 mm) of the top inside surface of the tank.
- The other float switches are mounted on adjustable stems and can be positioned to within 2 inches of the tank bottom.
- The stems are semi-flexible and flex with the sloshing of the tank contents.
- One float can be positioned to sense when the tank is empty, and the others to sense when the tank is 1/4 or 1/2 full, depending on the application.
Tank Monitor Application Chart
- Four lighted level indicators for each tank application.
- One light is always “on” to indicate system power.
- Flexible probe design eliminates false readings from fouled float switches.
- Available probe lengths fit tanks up to 22 inches (559 mm) or 45 inches (1143 mm) in depth.
- Panel complements bathroom decor. International symbology eliminates confusion.
- Installs in any rigid tank with an optional 3-inch NPT mounting flange.
- Each system operates on either 12 or 24 VDC.
- Probe cap provides a clean-out fitting for easy access to the tank interior.
- Vent hose connection in probe cap (if applicable) permits connection of 5/8-inch (16 mm) vent hose.
- Optional shut-down relay plugs into circuit board to shut down toilet system when gray or black water waste tank is full (DTM04 model only).
- Only one level of light is on at a time to eliminate confusion and save battery power.
- CE approved for electromagnetic compatibility.
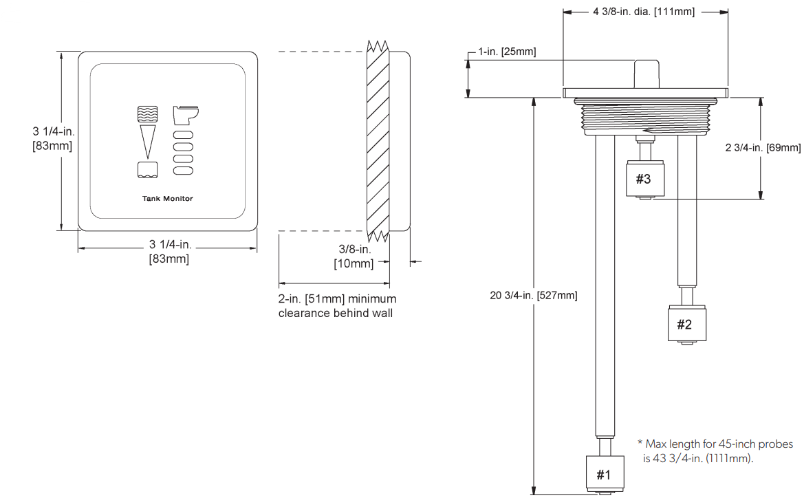
Dimensions
Installations
Adjustable Tank Probe Cap
- Loosen compression nuts on adjustable probes and install the cap into the tank.
- Slide the #1 probe down until the float touches the bottom of the tank.
- Tighten the #1 compression nut and mark the probe at the top of the nut with a pen or pencil.
- Do not cut the probe’s tubing at this mark. Loosen the compression nut, slide the probe up, and carefully cut the #1 probe’s tubing 1-5/8 inch (41.3mm) below the mark without damaging the switch wires.
- Pull the wires through the black wire cover and push the probe down into the compression nut until the black wire cover touches the compression nut.
- Remove the cap from the tank and adjust the #2 probe for a 1/2 full level for gray and black water tanks or a 1/4 full level for freshwater tanks.
- Tighten the compression nut and cut the probe’s tubing off 3/8-inch (9.5mm) above the compression nut without damaging the switch wires.
- Remove the C-clip from the switch body, flip the float 180 degrees, and replace the C-clip. (See Diagram #1.)
- The #2 float switch can activate the “Mid” light on black and gray water tanks and activate the “Low” light on freshwater tanks.
- The recessed shoulder, white band, or the letters “NO” should be facing up for black and gray water tanks and down for freshwater tanks.
- Route 18-gauge stranded copper wire from the indicator Dometic DTM04 Tank Monitor Systems panel to the level indicator cap.
- Use quick disconnect terminals on float switch wires to prevent twisting wires when removing the cap.
- Disconnect the wires and install the cap with the O-ring into the tank, then reconnect the wires.
Monitor Panel
- Select a mounting location away from direct contact with water and oil.
- Dry locations in the bathroom, salon, or galley Dometic DTM04 Tank Monitor Systems are most desirable.
- Confirm clearances for the panel and wire connections behind walls, hull liner, or bulkhead.
- Cut out mounting holes (see template for panel and fastener hole locations).
- Do not mount the circuit panel until wiring is routed and properly connected.
- Route wires following the appropriate wiring diagram for black, gray or fresh water applications.
- Include wires for optional electrical accessories that may be part of the installation and shown in separate wiring diagrams.
- Install the circuit panel with the four #6 fasteners provided. Make sure to install with the “UP” arrow pointing in the proper direction.
- Push the panel cover onto the circuit panel until it snaps into place.
Universal Tank Flange Kit 
- Find and mark the top center of the tank.
- Cut a 4 1/16-inch diameter hole in the top center of the tank.
- Slip the flange into the hole and mark the location of the five mounting holes.
- Drill the five mounting holes with a 1/4-inch drill bit.
- Remove the flange, clean all oils, grease, and dirt from the mounting surface, and allow it to dry.
- Apply liberal amounts of silicone rubber adhesive to the mounting surface and the underside of the flange.
- Insert the gasket into the flange and align it with the five mounting holes.
- Secure the flange with the screws, nuts, and washers provided.
- Install the probe cap and, if applicable, secure the 5/8- inch vent hose to the vent fitting with a stainless steel hose clamp.
Shut-down Relay (optional – applies to DTM04 only)
- Insert a small screwdriver behind the top or bottom slot of the panel cover and pry it outward.
- Remove the panel cover from the circuit panel.
- Remove the four mounting fasteners and pull the circuit panel out of the wall or hull liner, exposing the wiring connections.
- Insert the shut-down relay into the socket on the back of the circuit panel.
- Reinstall the circuit panel to the wall.
- Route the additional wires (use 12 or 14 gauge stranded copper) to wires 10 and 11 on the pigtail to interrupt power for the toilet system.
- Turn on the power and test the circuit.
- Complete installation to the wall.
WIRING DIAGRAMS
DTM04 Tank Monitor System for Blackwater Waste Tank
- USE 18GA. OR LARGER STRANDED COPPER WIRE.
- IF OPTIONAL “TANK FULL” SHUT-DOWN RELAY IS INSTALLED, PINS 10 AND 11 REQUIRE 14GA. OR LARGER STRANDED COPPER WIRE.
- BLACKWATER TANK NOTE: RECESSED SHOULDER, THE WHITE BAND, OR THE LETTERS “N-O” OF THE “EMPTY” FLOAT ARE DOWNWARD.
DTM08 Tank Monitor System for Blackwater and Freshwater Tanks
- USE 18GA. OR LARGER STRANDED COPPER WIRE.
- BLACKWATER TANK NOTE: RECESSED SHOULDER, THE WHITE BAND, OR THE LETTERS “N-O” OF THE “EMPTY” FLOAT ARE DOWNWARD.
- FRESHWATER TANK NOTE: RECESSED SHOULDER, THE WHITE BAND, OR THE LETTERS “N-O” OF THE “EMPTY” AND “MID” FLOAT ARE DOWNWARD.
DTM12 Tank Monitor System for Blackwater and Graywater Tanks, and Freshwater Tank
- USE 18GA. OR LARGER STRANDED COPPER WIRE.
- BLACKWATER AND GRAYWATER TANK NOTE: RECESSED SHOULDER, THE WHITE BAND, OR THE LETTERS “N-O” OF THE “EMPTY” FLOAT ARE DOWNWARD.
- FRESHWATER TANK NOTE: RECESSED SHOULDER, THE WHITE BAND, OR THE LETTERS “N-O” OF THE “EMPTY” AND “MID” FLOAT ARE DOWNWARD.
Shut-down Relay with DTM04 Tank Monitor System
- USE 12 OR 14 GAUGE STRANDED COPPER WIRE ON PINS 10 AND 11.
- WITH RELAY INSTALLED AND DTM04 MODEL WIRED FOR A BLACKWATER TANK, THE “FULL” FLOAT SWITCH WILL SHUT OFF ELECTRICAL POWER TO THE TOILET SYSTEM.
- Consult toilet system specifications for proper fusing or circuit breaker size. Do not exceed 30 amps.
Specifications
Electric current
Warranty
Refer to the sections below for information about Dometic DTM04 Tank Monitor Systems warranty and warranty support in the US, Canada, and all other regions.
Disposal
Place the packaging material in the appropriate recycling Dometic DTM04 Tank Monitor Systems waste bins, wherever possible. Consult a local recycling center or specialist dealer for details about how to DOMETIC SB27150 90 Degree Bezel Kit Installation dispose of the product in accordance with the applicable disposal regulations.
Customer Service
SPAIN
- Address: Dometic Spain S.L. Avda. Sierra del Guadarrama, 16 E-28691 Villanueva de la Cañada Madrid
- Call: 8 +34 900 100 245.
- Email: info@dometic.es
GERMANY
- Address: Dometic WAECO International GmbH Hollefeldstraße 63 • D-48282 Emsdetten
- Call: 9 +49 (0) 2572 879-195
- Email: info@dometic-waeco.de
FRANCE
- Address: Dometic SAS ZA du Pré de la Dame Jeanne B.P. 5 F-60128 Plailly
- Call: +33 344633518
- Email: vehiculesdeloisirs@dometic.fr
AUSTRALIA
- Address: Dometic Australia Pty. Ltd. 1 John Duncan Court • Varsity Lakes QLD 4227
- Call: 8 +61 7 55076001|
- Email: sales@dometic-waeco.com.au