TeeJet TECHNOLOGIES MT600 Injection Pump

Mounting
All sides of the pump may need to be accessible for service purposes. The top of the oil level should always be visible somewhere in the viewing window. Avoid overfilling. Figures 1 and 2 provide measurements and mounting holes for the pumps.
Bottom View
Side View

MT600 Injection Pump
Cabling
Each MT600 injection pump is equipped with two cables:
- a pump control cable
- a pump power cable.
Refer to the sample system diagrams on Pages 6 and 7 for suggestions on how to connect the system. Route all cables carefully. Avoid moving parts, excessive heat, and exposure to tree limbs, stubble, and other debris. Allow enough slack at all pivot points to prevent pinching or stretching the cables. Secure the cables with cable fasteners and/or cable clamps.
Pump Power Cable
Route each power cable to the vehicle battery (12 VDC only). Attach the red lead (fused) to the positive post and the black lead to the negative post of the battery.
Proper Pump Size Selection
Use the following formula to determine the flow capacity requirements of the pump. Check the Pump Tube Selection Chart (Figure 3) to verify the proper pump tube size.
US Measurements
| Pump Capacity = | Max. Boom Width | x | Max. Speed | x | Chemical Rate | x | (.00202) |
| (oz/Min) =
Metric Measurements: |
(feet) | x | (mph) | x | (oz/acre) | x | (.00202) |
| Pump Capacity = | Max. Boom Width | x | Max. Speed | x | Chemical Rate | x | (.00167) |
| (l/Min) = | (meters) | x | (kph) | x | (l/ha) | x | (.00167) |
US example: A sprayer with 35-foot booms traveling at a speed of 7 mph and applying 32 oz of chemicals per acre requires a maximum pump capacity of 15.8 oz/min. (35 feet x 7 mph x 32 oz/ac x .00202 = 15.8 oz/min.) Referring to the Pump Tube Selection Chart, a 3/16 inch pump is sufficient for this rate. If 100 oz/acre of chemical is required for application, a 1/4 inch pump tube is required (35 feet x 7 mph x 100 oz/acre x .00202 = 49.49 oz/min), which exceeds the recommended range of the smaller 3/16 inch tube. (Chart is in oz/min or l/min)
Pump Tube Selection Chart
- Recommended Operating Ranges for the TeeJet Injection Pumps

Metric Pump Tube Selection Chart
- Recommended Operating Ranges for the TeeJet Injection Pumps

The accuracy of product delivery by the MT600 pump is dependent on the pump being accurately calibrated. It is recommended that the pump be calibrated any time the following occurs:
- The first time a pump is installed and used
- Any time a pump tube is changed
- Any time a new chemical is used in the pump
- Any time the operator feels that the pump discharge may not be accurate
If the calibration procedure ever results in a calibration number that does not fall within a range of +/- 10% of the above-stated default calibration numbers, the user must stop using the pump immediately and contact their TeeJet Technologies supplier for assistance.
Pump Tube Installation
To install the pump tube, release the tube retaining strap and lift it up and away from the tube rollers. Coat the tube with Tube Lube (included with tube). THIS IS A REQUIRED STEP. Attach one hose quick disconnect fitting to the left hose connection. Loop the tube over the rollers and down between the tube rollers and the tube strap hinge (there is not enough space between the tube roller assembly and the tube strap hinge to slip the tube in from the front without damaging the tube).
Stretch the tube enough to lock the right hose quick disconnect fitting into place. Swivel the tube retaining strap into place and secure it with the latch.
Calibration
Refer to the 026-73 AddFlo User Manual
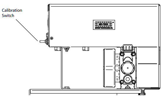
Figure 5: Pump Calibration Switch

Figure 6: Pump Diagram

Maintenance
TeeJet Technologies recommends the following maintenance to keep the MT600 injection pump operating at peak efficiency:
Flushing and Cleaning
Always refer to the Adjuvants manufacturer’s directions regarding cleaning and flushing. Check the pump head oil level. The top of the oil level should always be visible somewhere in the viewing window. Do not leave Adjuvants in the pump or application lines overnight.
Weekly and Seasonal Pump Maintenance
Check the pump carefully for wear each week during frequent operations. Check for cracking, belt wear, or other signs of material fatigue. If any signs of deterioration are visible, replace the part immediately. Contact your TeeJet dealer for assistance. Install the ball and seat repair kit (Part number 54-02031).
Figure 7: System Overview

| Pump Specification | |
| Electric Power Supply | 12 Volts DC < 15 Amps @ Max RPM |
| Pump Type | Positive Displacement Piston |
| Dimensions | 25.4 mm x 29.1 mm x 40.5 mm |
| Fluid Output | 0.015 to 7 L/min (one to four heads) |
Plumbing points of attention
- The carrier from the main tank (without Adjuvants) has to recirculate back to the tank and
- The liquid containing Adjuvants stays recirculating in the boom
Electrical points of attention
In case of retrofitting an existing AddFlow installation, make sure to replace the existing Y-cable with cables 198-332 and 197-259. In case of connecting an injection logging system logger, please review the corresponding manual of the logger.
Schematic Diagrams




Piston Pump General Specifications
| Product Description | |
| Pump Type: | Positive Displacement Piston Pump |
| Versatility: | Can be injected into the pressure side of the carrier pump, wide operating range, scalable to fit most applications, modular, serviceable, and compatible with various TeeJet controllers. |
| Performance Characteristics | |
| Response: | Chemical moves through the tube immediately when the motor is driven |
| Motor Speed: | 0 to 225 rpm at 12.5 VDC |
| Pumped Media | |
| Fluids: | Liquid chemicals only |
| Electrical | |
| Power: | 30 to 250 watts typical (30 amp fused) |
| Voltage: | 12-volt DC vehicle |
| Power Connection: | 2-pin MetriPak 480 Tower sealed |
| Physical Properties | |
| Dimensions: | 11.5”H x 10”D x 16”W
29 cm x 25.4 cm x 40.4 cm |
| Plumbing: | 3/4” NPT Manifold |
| Weight 1 head: | 26lbs/11.8kg |
| Weight 4 heads: | 46lbs/20.9 kg |
| Environmental | |
| Temperature: | 34 degrees F to 140 degrees F
1 degree C to 60 degrees C |
| Humidity: | Weatherproof (high humidity) |
| Vibration: | n/a |
| Dust: | n/a |
| Pressure | |
| Max Operating Pressure | 100 psi (6.9 bar) |
Product Warranty
TeeJet Technologies Illinois LLC warrants to the original purchaser that the product purchased shall be free of defect in material or workmanship.
All product(s) replaced or repaired under warranty shall carry the remainder of the warranty left on the original purchase. All out-of-warranty product(s) serviced for fee or goodwill will have ninety (90) days of warranty. The ninety (90) days shall begin on the date TeeJet TECHNOLOGIES MT600 Injection Pump serviced by TeeJet Technologies.
Warranty periods for TeeJet Technologies products shall be:
- TeeJet and Mid-Tech Control Consoles – 2 1/2 years
- TeeJet and Mid-Tech Switch boxes – 2 1/2 years (3, 5, 9 booms)
- All other products – 12 months unless otherwise noted
Warranty Limitations and Exclusions
Any repairs or alterations, other than those provided by TeeJet Technologies and/or its authorized representatives, will void the warranty. TeeJet Technologies neither assumes nor authorizes anyone to assume for it any other obligation or liability in connection with said product.
Disclaimer of Unstated Warranty
The warranty printed above is the only warranty applicable to this purchase.
Customer Support
- Tel: (502) 912-0055
- Website: @teejet.com
FAQs
Q: Is the MT600 compatible with all spray systems?
Ans: The MT600 is compatible with most TeeJet and third-party sprayer controllers, provided they support chemical injection control. Always check your system’s compatibility before installation.
Q: What types of chemicals can be used with the MT600?
Ans: However, chemicals must be non-corrosive and compatible with pump materials. Always verify chemical compatibility with the pump’s seals and housing.
Q: How many injection pumps can be used in one system?
Ans: The MT600 supports single or multi-pump configurations. You can use multiple pumps for different chemicals, provided your controller can manage and monitor them separately.
Q: What power source does the MT600 require?
Ans: The pump operates on 12V DC power, typically supplied from the tractor or sprayer’s electrical system. Ensure proper grounding and fuse protection during installation.
Q: Where should the MT600 be mounted on my sprayer?
Ans: Mount the pump in a clean, dry, and vibration-free location close to the chemical source. It should be easily accessible for service but away from heat or moisture sources.


